F-76, opp. St. Peter School, RPS City, Sector 88, Faridabad, Haryana 121002
RPS 12th Avenue Faridabad Office Spaces, retail shops & food Court developed by the RPS Group who have a wide area of 5.2M Sq. FT. This is the site where carefree tourists indulge in activities that are lavish as well as fashionable and modern in the same space. One may enjoy nature at its best and amidst the latest advancements in the field when at the same time at a commercial property.
Nevertheless, we are speaking about a prospective project which portrays them as supreme players in global business. Furthermore, In Faridabad Commercial Project is a vastly popular new industrial town, which has the availability of luxurious office and retail spaces catering to the demands of highly advanced companies and entrepreneurs.
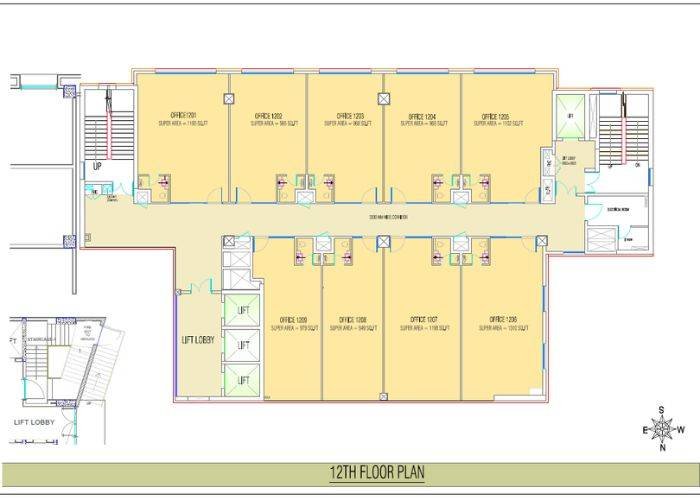
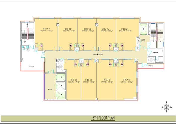
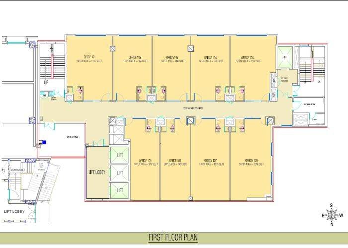
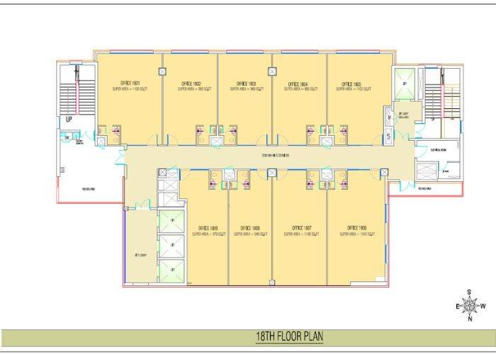
This particular project, located at Sector 27C, combines the newest design, advanced facilities, and an unbeatable location which truly makes it a busy business hub. Owing to its strategic spot and wise layout, the project is simply a step into a bigger world for businesses that require visibility and want to grow and develop themselves. The project is comfortable stretched over an area of 7 acres and was freshly planned. RPS Group, a famous name provides a state that is excellent for business establishments in a very busy organization.
The project consists of modern office spaces and businesses that are small-to-medium in size, which are vibrant, and have everything they may require. The result is a workplace that is both alluring and extremely convenient so that the employed are able to yield the best possible results. RPS 12th Avenue Office Spaces will be nothing less than an edifice that will draw to the elite in the new society. This is a new version of not only the office spaces but also the retail shops in the food courts. Not only that, but it is also presentable with such space, which is both economical and highly affordable.
RPS 12th Avenue Office Space is located in Mathura Road, Faridabad. It involves making a commercial development project. That is why more and more people are motivated to see that such prospects of success are to be shared just among a select few. Whereas it will make way for those who come up with a forecast which is the appropriate one to make them realize that they are part of the good life that is being created for them. No other project stands a chance to clear the path leading to its obsolete and unsolved infrastructure.
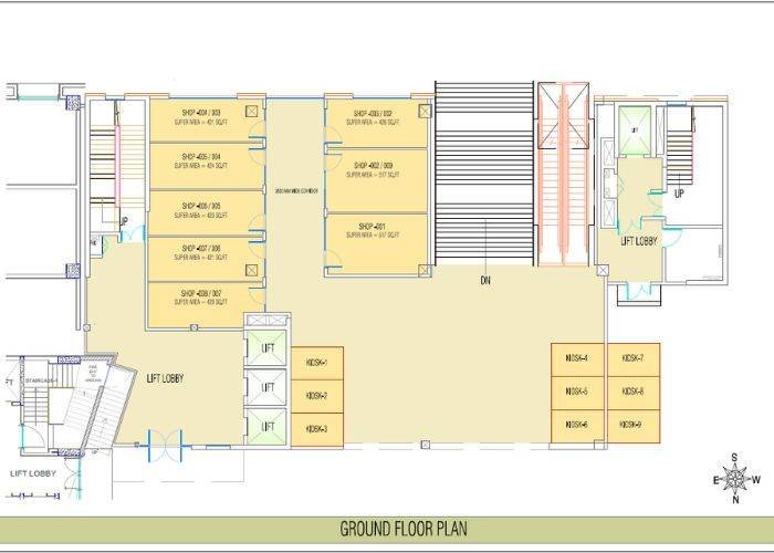
RPS 12 Avenue Food Court is a dedicated commercial space designed to serve the growing population of Sector 27C and nearby areas of Faridabad. It brings together small food outlets, cafes, sweet shops, bakeries and daily-need counters in one organised zone. The food court is planned to make daily dining and snacking easier for residents living inside RPS 12 Avenue as well as the large residential neighbourhood around it.
The location is one of its biggest advantages. Sector 27C is well connected to Mathura Road, the upcoming FNG Expressway and key pockets of New Faridabad. With thousands of families and working professionals living nearby, the food court enjoys regular footfall throughout the day. This makes it a strong spot for businesses that depend on steady walk-ins.
Investing in RPS 12 Avenue Food Court can be a smart move for both business owners and investors. The units are low-maintenance, easy to operate and suitable for food start-ups, cloud kitchens, quick-service outlets and takeaway counters. For investors, the demand for food spaces in high-density residential zones supports stable rental income.
RPS 12th Avenue Gaming Zone is an upcoming entertainment space planned inside the RPS 12 Avenue township in Sector 27C, Faridabad. It is designed to offer a dedicated indoor play and recreation area for children, teenagers and families living in and around the locality. With the rise of urban living and limited outdoor play spaces, a modern gaming zone becomes a valuable addition for residents who want safe and convenient entertainment.
The location gives the project a natural advantage. Sector 27C is surrounded by well-populated residential sectors and enjoys smooth connectivity to Mathura Road, the FNG Expressway and central Faridabad. This ensures consistent walk-ins from families, especially during evenings, weekends and holidays. Since the gaming zone is located within a large society, it already has a built-in customer base.
Investing in the RPS 12th Avenue Gaming Zone can be a practical choice. Entertainment spaces often attract higher footfall compared to regular retail, which supports steady business growth. For investors, these units offer good rental potential because gaming operators prefer safe, high-density residential pockets.
